Talu Textile Office Building Space Design: Innovative Integration of Office Furniture, Display Cabinets, and Customized Furniture
Address: Istanbul, Türkiye
Area: 13000 square meters
Keywords: office furniture, clothing display cabinets, customized furniture, new generation workspace, open collaboration and diversity, product display design, environmental design elements
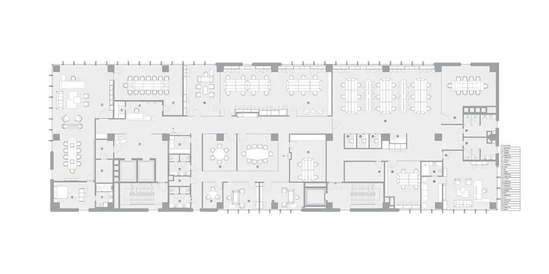
XYZ Design design team has built a 13000 square meter modern office space for Talu Textile in Istanbul, Türkiye. Through the deep integration of modular design of office furniture, customized clothing display cabinet and functional customized furniture, the functional and aesthetic unity is achieved through the collaborative design of furniture and space. This eight story office building meets the production and management needs of sportswear manufacturing enterprises.
Office furniture: flexible layout drives efficient collaboration
In the core office areas of the fourth and fifth floors, XYZ Design adopts a dynamic non tiered office furniture system, breaking the traditional grid constraints. The open office area is based on a linear layout, equipped with adjustable desks and ergonomic chairs to meet the diverse needs of employees for standing work, team discussions, and more. The surrounding collaborative area is equipped with modular combination sofas and mobile whiteboards, combined with glass partition conference rooms, which not only ensure meeting privacy but also maintain spatial transparency through transparent materials. Customized solid wood office desks with leather seats on the administrative floor, integrated with wireless charging and cable management systems.
Display Cabinet Design: Narrative Integration of Products and Space
As a sportswear manufacturer, Talu Textile integrates product display design into the DNA of office space. The reception hall on the first floor is equipped with curved acrylic display cabinets with built-in dynamic lighting systems, which cyclically display seasonal new products and brand historical collections. The bottom of the display cabinet adopts a suspended design, allowing visitors to intuitively understand the fabric composition and production process of the product.
Around the third floor staff restaurant, XYZ Design cleverly sets up an open style clothing display rack, echoing the vibrant color tone of the dining area. These display shelves serve both product display and temporary storage purposes, allowing employees to exchange design inspirations.
Customized Furniture: Functional Space Solutions
Customized furniture has become the key to space optimization, catering to the specific needs of different floors. The manufacturing area on the second floor is equipped with high-density intelligent storage cabinets, which adopt a layered drawer design to make the storage and retrieval of fabrics and semi-finished products more efficient. The customized workbench in the cutting area integrates the sewing machine power interface and waste collection slot, and the tabletop is made of anti pollution and fireproof materials.
The customized furniture of the Human Resources Department (first floor) focuses on a humanized experience. The interview room is equipped with a rotatable partition cabinet, which not only serves as a spatial partition, but also displays employee honors and company activity photos. The storage cabinet is designed as a modular cube, and employees can freely combine units according to the size of the items. There are hidden charging interfaces and dehumidification systems inside.
The design of office furniture, display cabinets, and customized furniture always complements the concept of open collaboration and diversity in space. The customized wave shaped seats in the four story game wall area are linked with the interactive projection system on the wall; The green plant wall set up on the fifth floor is paired with a hanging flower pot rack, introducing natural elements into the office environment. The flower pot rack itself also has the function of document storage, achieving the unity of ecology and practicality.
	XYZ Design has systematically designed office furniture, display cabinets, and customized furniture to make the 13000 square meter office space a three-dimensional presentation of brand strength, setting a new benchmark for office space design in manufacturing enterprises.
	
		
	
	
		





















