
律师事务所办公环境设计:定制办公家具打造灵活可持续工作空间
—— 英国 Freeths LLP 律所利兹办公室设计案例 · DENTON 设计团队出品
项目地址:英国 利兹
设计面积:1,068 平方米
设计团队:DENTON Design
关键词:办公家具 | 办公环境设计 | 定制办公家具 | 律师事务所环境设计 | 灵活多元 | 可持续办公 | 品牌文化空间
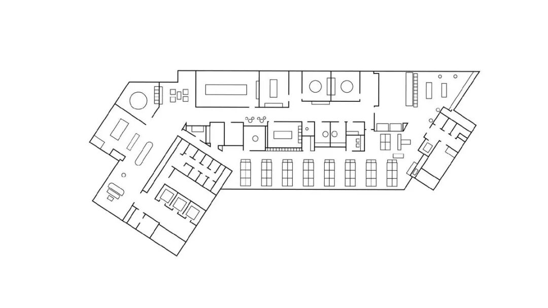
DENTON设计团队为英国领先律所Freeths LLP的利兹办公室打造了一套系统性的律师事务所环境设计方案。项目总面积1,068平方米,以“现代、可持续、灵活多元”为核心设计主张,通过精细化的办公环境设计规划和全套定制办公家具配置,将一个基础毛坯空间彻底转化为能够承载律所品牌文化、提升团队凝聚力、并高效服务客户的专业工作环境。这一项目也延续了DENTON团队与Freeths在谢菲尔德办公室合作的成功经验,双方在深度协作中将设计愿景精准落地。
本次办公环境设计的核心目标,是将空间转变为一个与Freeths品牌标识高度一致的活力工作场所。设计团队在策略层面确立了三大优先原则:
▶ 可持续优先:最大化保留原有建筑布局与结构,仅在必要处引入新元素,减少建造浪费,契合律所的ESG理念;
▶ 品牌定制:中性配色打底,以律所品牌色作为点缀,以“看得见的品牌”方式强化企业识别度;
▶ 敏捷办公:引入专注工作室、灵活休息区与客户专用区域,满足后疫情时代混合办公模式下的多元需求。
设计过程中,DENTON团队通过多轮研讨工作坊与客户深度对齐需求,确保每一件定制办公家具的选型与每一处空间规划都有据可依,最终交付了一个现代、时尚、高度可用的律师事务所环境设计成果。


















整个律师事务所环境设计的空间叙事核心,是一个战略性布置于客户区旁侧的“市政大厅”——一处真正意义上的多功能社交枢纽。在办公家具配置上,这里汇聚了:
▶ 媒体屏幕系统:支持培训课程、全员大会及多媒体演示;
▶ 看台阶梯座:兼具观演与非正式交流功能的定制座席设计;
▶ 车厢卡座:提供半私密的小组讨论与休闲交流空间;
▶ 厨房延伸区:将餐饮功能与社交功能无缝融合,激活员工日常互动。
这套定制办公家具组合将“正式”与“非正式”、“工作”与“社交”融为一体,使市政大厅成为全办公室凝聚力与文化能量的发散点,充分体现了现代办公环境设计中“以人为本”的空间哲学。
会议室是律师事务所环境设计中对私密性与专业感要求最高的区域。DENTON团队对会议室进行了全面的办公家具与装饰升级:隔断玻璃采用条纹装饰处理,在视觉上形成通透感的同时有效保护会议内容的私密性;整体色调与材质延续律所品牌的沉稳气质,为客户洽谈和内部敏感讨论营造恰当的专业氛围。这一细节的精准拿捏,正是高水准办公环境设计区别于普通装修的核心所在。
在律师事务所环境设计中植入地域文化基因,是本案最具温度的设计策略之一。设计团队在空间中大量运用天然木材及高品质本地材料,让定制办公家具与硬装体系呈现出有机的整体感。更值得称道的是,DENTON与利兹大学一位艺术专业学生合作,为空间量身创作了独家艺术装置——这一举措不仅为办公环境设计注入了真实的社区温度,也让Freeths的利兹团队对这个空间产生了更深的情感认同与归属感。
在所有定制办公家具与设计细节中,有一件物品格外触动人心——一个外形仿照传统英式邮政信箱设计的意见箱。它不仅是一件精心制作的办公家具单品,更是整个利兹团队共同记忆与情感的载体。这种将历史意象融入现代办公环境设计的手法,赋予了空间超越功能层面的人文厚度,也体现了DENTON在律师事务所环境设计领域深耕多年所形成的独到洞察:优秀的办公空间,不只是好看的容器,更应成为人与组织故事的见证者。
Freeths LLP利兹办公室项目,是DENTON设计团队在律师事务所环境设计领域的又一力作。从战略层面的品牌定位,到执行层面的定制办公家具选配;从公共区域的办公环境设计创新,到个人情感细节的深度雕琢——这1,068平方米的空间,完整诠释了何为真正意义上的“为人而设计的工作场所”。对于同样寻求高品质办公家具配置与专业办公环境设计服务的企业而言,本案提供了一套兼顾美学、功能、可持续与情感共鸣的完整参考蓝本。
设计方:DENTON Design | 项目地点:英国 利兹 | 面积:1,068 m²