首页
关于文一
产品中心
办公椅
办公桌
会议
隔断
就餐
沙发
定制
午休床
多功能
金属柜
空间设计
设计优势
空间设计
空间理念
设计潮流
解决方案
IT高科
金融行业
消费品行业
传统制造
会所酒店
商务样板间
其它领域
服务与咨询
医疗与健康
环保与能源
家具资讯
联系文一
黄先生:13809618579 (微信同号)
选择语言
中文
英语
法语
西班牙语
俄语
阿拉伯语
IT高科
金融行业
消费品行业
传统制造
会所酒店
商务样板间
其它领域
服务与咨询
医疗与健康
环保与能源
Genesis首尔总部汽车品牌办公空间设计-定制家具与工业风美学
分享至社交平台
Genesis首尔总部汽车品牌办公空间设计-定制家具与工业风美学
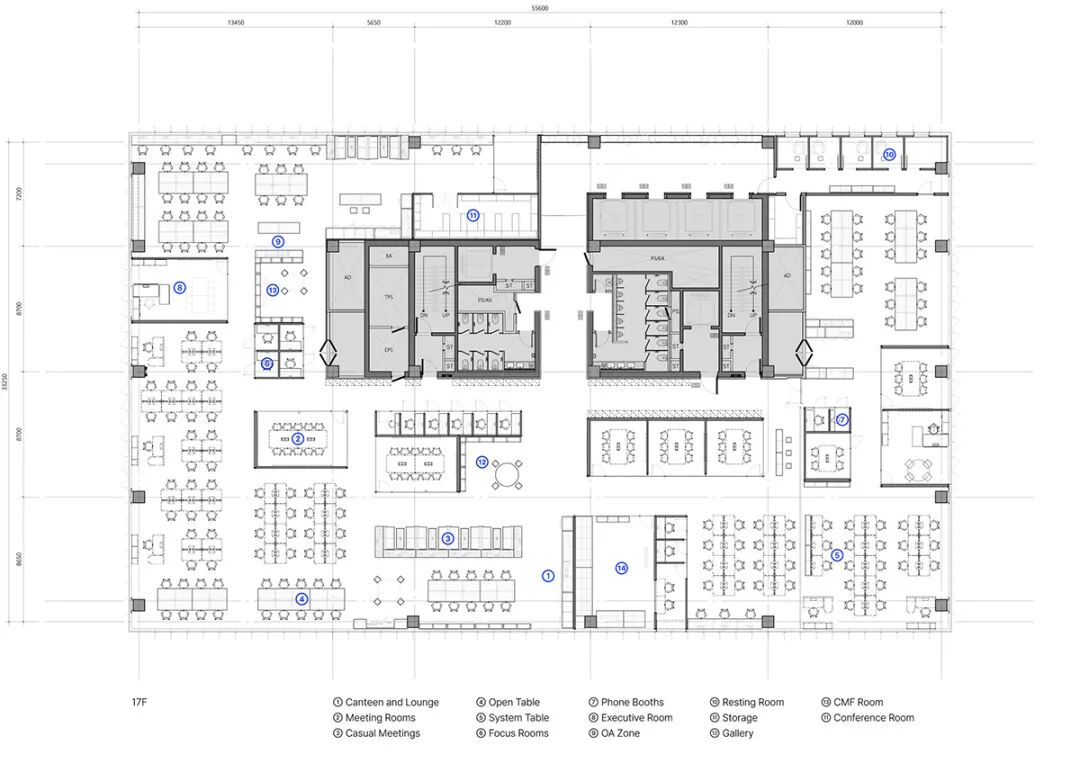
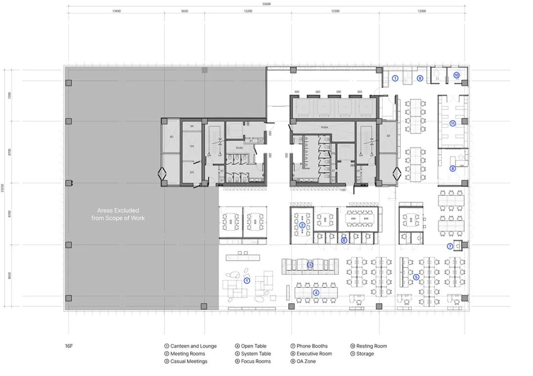
**项目名称:** 韩国Genesis(捷尼赛思)首尔总部办公空间
**项目地址:** 韩国 首尔
**项目面积:** 2,630 平方米
**关键词:** 汽车行业办公空间,定制办公家具,办公环境设计,空间美学,工业风,开放协作,创意工场,实木与光影,高端办公室装修,品牌总部设计
在现代汽车集团(Hyundai Motor Group)的创新版图中,其旗下豪华品牌Genesis位于首尔江南区的总部办公室,正以其颠覆性的空间设计,重新定义了**汽车行业办公空间**的未来范式。这不仅是一个办公场所,更是一个融合了**定制办公家具**、前沿**办公环境设计**与深厚**空间美学**的创意工场。
本案由COM设计团队倾力呈现。设计师摒弃了传统汽车企业办公室冰冷、刻板的印象,旨在通过极具人文关怀的**空间美学**,激发员工的创意协作与灵感共享。这个横跨16、17两个楼层、总面积达2,630平方米的空间,如今已成为Genesis品牌精神的物理延伸。
**定制办公家具:实木与光影的温暖交织**
踏入办公室,首先映入眼帘的是由400盏银色吊灯与金属网格架构成的系统化loft天花,营造出通透利落的工业风视觉冲击。然而,与顶部硬朗线条形成鲜明对比的,是地面活动区大量使用的**定制办公家具**。设计师精选自然肌理的原木色家具,配合木质饰面包裹的功能盒子,打破了工业风的冷峻,注入了温暖惬意的氛围。这些**定制办公家具**不仅是功能的载体,更是光影的画布。白昼时分,阳光透过玻璃幕墙洒入,在木质表面形成变幻的光影韵律;夜幕降临时,暖色灯光在木饰面与金属之间流转折射,整个空间弥漫着令人安适的温润质感。这种**办公环境设计**充分体现了对员工包容与福祉的关注,让办公空间成为令人流连的日常场景。
**办公环境设计:从效率机器到福祉空间**
面对后疫情时代人居空间的需求变革,Genesis总部设计回应了职场人对传统密集隔断式办公室的厌倦。COM团队将这里设计成一个开放灵活的社区。通过裸露的挑高天花板和垂吊照明系统,构建出轻盈有序的视觉体系。会议室、高管办公室等需要静谧的区域被设计为独立的“功能盒子”,如同散落的积木,在它们之间自然形成了餐厅、休息区、OA工作站等过渡区域。这种布局打破了传统**汽车行业办公空间**的局限,让使用者能够自发互动与休闲,使办公环境从单纯的效率工具转变为融入员工生活的福祉空间,完美折射出Genesis品牌的高端价值主张。
**空间美学:每个角落都是独特的景致**
该项目在**空间美学**上的追求达到了极致。设计团队巧妙地在16层(990平方米)与17层(1640平方米)之间构建了无缝衔接的动线。每一处办公区域都拥有如同窗外流转景致般的独特气质。无论是5米挑高下的震撼视觉,还是木质小盒子里私密的专注角落,亦或是休闲座位区里轻松的交流氛围,都为可自主选择工位的员工带来了充满惊喜的日常体验。从2023年10月概念启动到2024年3月竣工入驻,短短三个月的施工周期,不仅创造了**汽车行业办公空间**设计的里程碑,更通过精妙的**定制办公家具**与**办公环境设计**,将Genesis的品牌灵魂——匠人精神与现代奢华,注入了每一个物理细节之中。
最终,这个**办公环境设计**项目证明了,顶尖的**空间美学**能够成为驱动品牌创新与人才吸引力的核心引擎。
整理中
返回上一级
下一篇:
李宁上海总部办公空间设计-运动品牌办公环境与定制家具
在线客服
电话联系
13809618579
微信同号