首页
关于文一
产品中心
办公椅
办公桌
会议
隔断
就餐
沙发
定制
午休床
多功能
金属柜
空间设计
设计优势
空间设计
空间理念
设计潮流
解决方案
IT高科
金融行业
汽车行业
传统制造
会所酒店
商务样板间
其它领域
服务与咨询
医疗与健康
环保与能源
家具资讯
联系文一
黄先生:13809618579 (微信同号)
选择语言
中文
英语
法语
西班牙语
俄语
阿拉伯语
IT高科
金融行业
汽车行业
传统制造
会所酒店
商务样板间
其它领域
服务与咨询
医疗与健康
环保与能源
瑞典IT咨询Netlight慕尼黑办公:创新驱动灵活协作的工作方式
分享至社交平台
地址:德国 慕尼黑
面积:2,100 平方米
关键词:办公环境设计,办公家具搭配,IT咨询,德国,简约设计,开敞通透,协作交流,灵动多元,创意个性化,适应性
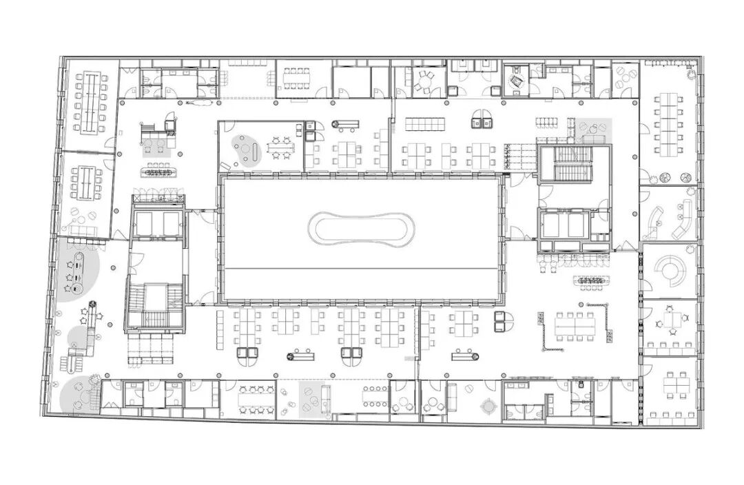
瑞典IT咨询公司Netlight于2024年初在德国慕尼黑市中心Pranner街设立新办公室,总面积约2,100平方米。
该办公空间由Seel Bobsin Partner设计团队打造,旨在为公司打造一个促进聚集、优化会议与创意交流的专业环境,以更有力、更生动地呈现企业文化。
新办公室以简约设计为基础,注重开敞通透的空间结构,形成现代室内装修与原有建筑结构的积极共生。
设计团队侧重营造情感化场景氛围,规划多个功能性特殊区域与高度灵活的交流区,支持协作交流与灵动多元的工作模式。
三层楼的空间规划重点布局协作区与互动交流区,以优化工作流程,促进与客户的直接创意对话,制定高效解决方案。
一楼设有宽敞的互动活动区,配备舞台、露台与活动厨房,可用于举办各类活动,相邻还设有健身房、休闲区与祈祷室。
二楼设专门客户接待区及图书区,既支持团队共创,也满足专注工作的需求。
各会议室均赋予不同的设计主题,通过现代色彩与高对比度的个性化元素,营造出与标准化办公室截然不同的愉悦氛围。
定制化室内装饰与时尚色彩组合,呼应了创意个性化与适应性的设计理念。
家具配置支持现代灵活的工作方式,能够适应企业快速发展与多样化的办公需求。
Netlight慕尼黑办公室通过创新驱动的空间设计,实现了功能、美学与文化的融合,不仅提升了团队协作效率,也增强了企业与客户之间的互动体验,体现出当代IT咨询企业注重灵活、开放与人文关怀的工作方式。
整理中
返回上一级
下一篇:
IT科技公司贝尔格莱德办公空间设计:美学与功能并重的灵感场域
在线客服
电话联系
13809618579
微信同号