首页
关于文一
产品中心
办公椅
办公桌
会议
隔断
就餐
沙发
定制
午休床
多功能
金属柜
空间设计
设计优势
空间设计
空间理念
设计潮流
解决方案
IT高科
金融行业
汽车行业
传统制造
会所酒店
商务样板间
其它领域
服务与咨询
医疗与健康
环保与能源
家具资讯
联系文一
黄先生:13809618579 (微信同号)
选择语言
中文
英语
法语
西班牙语
俄语
阿拉伯语
IT高科
金融行业
汽车行业
传统制造
会所酒店
商务样板间
其它领域
服务与咨询
医疗与健康
环保与能源
麦当劳瑞士总部办公空间与家具配置
分享至社交平台
麦当劳瑞士总部办公空间与家具配置
地址:瑞士 克里斯泽
面积:1,590 平方米
关键词:食品/饮料,品牌特色,协作高效,社交空间,灵活可变,开放与专注、沿窗布局,全球化,色彩搭配,麦当劳
麦当劳瑞士总部办公室由Mint Architecture设计团队打造,以办公环境设计为核心策略,将品牌基因深度植入定制化空间之中,创造出一个既能推动高效协作、又充满品牌活力的现代办公场所。
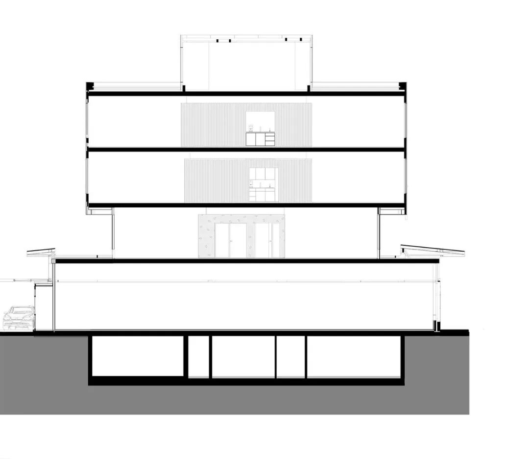
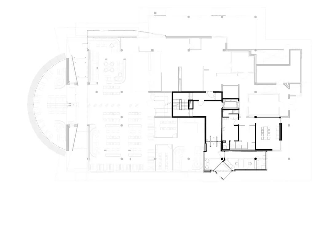
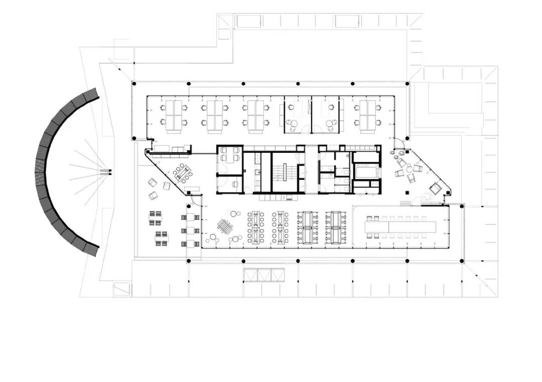
项目突破传统布局,依据企业工作模式与员工需求,将三层共1,590平方米的空间重新规划为功能鲜明的四大区域:社群互动区、会议区、开放办公区及多功能活动区。整个设计围绕一个贯通三层的中央枢纽展开,使其成为视觉与功能的核心。
在办公环境设计上,团队特别注重空间的灵活可变性。位于一层的多功能会议区与员工餐厅、露台通过可移动隔断相连,可根据需要迅速转变为大型活动场地。这种设计不仅支持多种工作场景,也极大提升了空间的使用效率。
办公家具与空间建构紧密配合,服务于定制化空间的功能目标。多样化座位选择、组合灵活的会议家具以及沿窗布局的专注工作间,均旨在支持从协作到专注的不同工作模式。上层办公家具的布置延续“互动与静思相融”理念,沿连续窗墙设置的工位充分引入自然光,而独立会议室与集成茶水间则促进偶然交流。
品牌特色的传达贯穿始终。设计通过色彩搭配与材质碰撞,在核心区域强化麦当伦的全球化品牌形象。穿孔金属板、黑框玻璃、橡木构件及声学元素,与简约的办公区形成对比,在视觉与体验上不断呼应品牌精神。
该项目通过精准的办公环境设计与高度定制化空间规划,结合功能多元的办公家具,成功将麦当劳的品牌能量转化为一个促进协作、灵活高效且独具特色的现代总部办公空间。
上一篇:
基辅游戏公司以体育竞技为魂的创意竞技场办公环境设计与办公家具配置
返回上一级
下一篇:
乌克兰HELLO SCHOOL:用设计解锁儿童创造力
在线客服
电话联系
13809618579
微信同号