不羁涂鸦撞上工业风:Muse音乐极客办公室的科技办公美学暴击

不羁涂鸦撞上工业风:Muse音乐极客办公室的科技办公美学暴击

不羁涂鸦撞上工业风:Muse音乐极客办公室的科技办公美学暴击

地址:塞浦路斯 利马索尔
面积:703 平方米
关键词:办公家具,办公环境设计,科技,软件/音乐,非主流,个性十足、激发创造力,协作与专注,音乐俱乐部,音乐元素,品牌精神,涂鸦,人体工学,模块化,沉浸式体验,重工业风,设计美学,定制家具

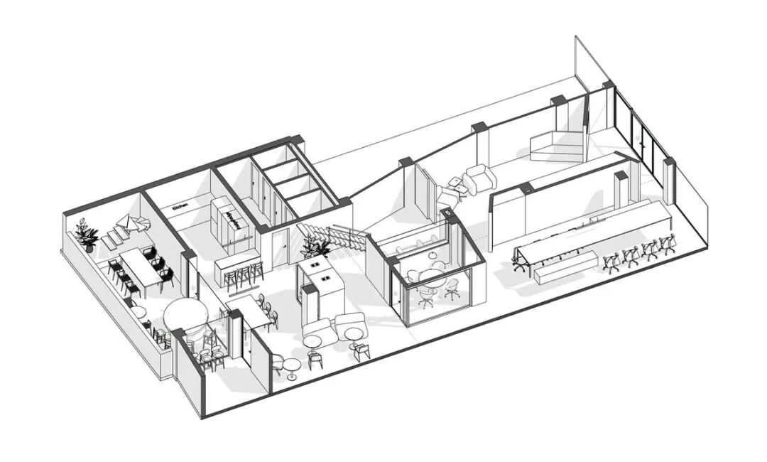
在塞浦路斯利马索尔的城市脉络中,一座703平方米的办公空间正在重新定义科技办公环境设计的边界。Tengo Design为Muse Group打造的创意办公空间,以非主流的设计语言,将音乐灵魂与重工业风完美交织,用不羁涂鸦和定制化办公家具,构建出一个个性十足、激发创造力的沉浸式办公场景。
作为音乐软件领域的革新者,Muse旗下的Audacity软件早已成为全球音乐人、播客创作者的创作利器。当科技基因遇上音乐灵感,办公空间不再是冰冷的工作容器,而是品牌精神的具象化表达。Tengo Design团队摒弃传统办公空间的刻板印象,以音乐俱乐部为设计原型,将舞台、涂鸦、演唱会海报等元素融入空间叙事,让每一处细节都流淌着创意的韵律。
步入办公区域,个性十足的涂鸦艺术与工业风饰面形成强烈视觉冲击,仿佛将音乐现场的激情与活力定格在空间之中。核心区域的专业舞台不仅是即兴演奏的表演场,更是团队协作与创意碰撞的能量场。Nobonobo品牌的Lanube系列沙发与Parfait休闲椅以模块化设计重构办公场景,让工作与休憩自然过渡;Narbutas人体工学工作站则以科技赋能健康办公,确保员工在长时间工作中保持舒适与高效。
空间设计遵循"协作与专注"的双重逻辑,从休闲洽谈区的随性交流到现代会议室的高效办公,每个区域都承载着特定的功能使命。定制化办公家具不仅满足人体工学需求,更以独特的设计语言呼应品牌精神。这种将音乐元素、设计美学与实用功能完美融合的设计哲学,让办公空间成为激发创造力的催化剂,而非简单的工作场所。
在Tengo Design的设计理念中,办公空间是企业个性的延伸。这个项目不仅是一次办公环境设计的创新实践,更是科技与艺术跨界融合的典范。当不羁涂鸦撞上工业风,当音乐灵魂邂逅科技办公,一个有态度、有温度的办公空间由此诞生,为科技行业的办公环境设计开辟了全新的可能。
在线客服
电话联系
13809618579微信同号