首页
关于文一
产品中心
办公椅
办公桌
会议
隔断
就餐
沙发
定制
午休床
多功能
金属柜
空间设计
设计优势
空间设计
空间理念
设计潮流
解决方案
IT高科
金融行业
消费品行业
传统制造
会所酒店
商务样板间
其它领域
服务与咨询
医疗与健康
环保与能源
家具资讯
联系文一
黄先生:13809618579 (微信同号)
选择语言
中文
英语
法语
西班牙语
俄语
阿拉伯语
IT高科
金融行业
消费品行业
传统制造
会所酒店
商务样板间
其它领域
服务与咨询
医疗与健康
环保与能源
定制DIY打造游戏公司办公新范式:Tripledot的创意协作空间
分享至社交平台
定制DIY打造游戏公司办公新范式:Tripledot的创意协作空间
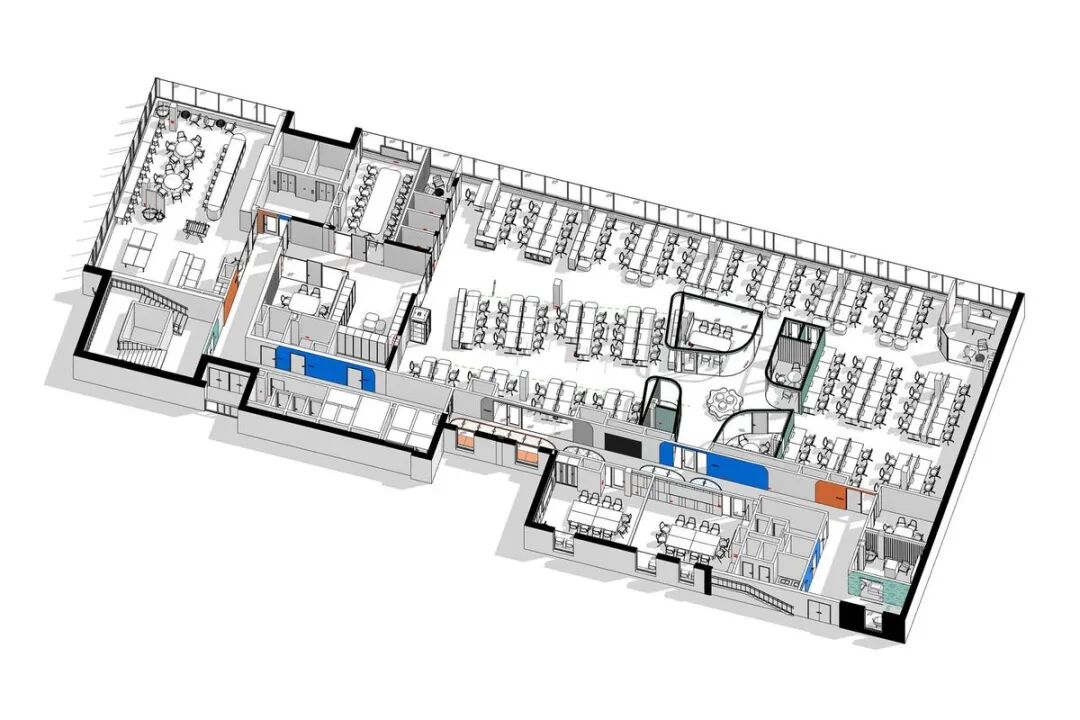
地址:白俄罗斯 明斯克
面积:1,200 平方米(110 个工位)
关键词:游戏,开放协作,办公环境设计,灵感创意,有机形式,标识应用,品牌诠释,有趣的办公空间,定制DIY,办公家具
在人才争夺白热化的游戏行业,办公环境已从单纯的物理空间升级为企业文化的延伸和创意生产力的催化剂。白俄罗斯明斯克的休闲手游开发商Tripledot,携手Tengogroup设计团队,用1200平方米的空间诠释了游戏公司办公环境设计的全新可能。
Tripledot的核心团队均来自King、Peak Games等行业巨头,他们深知创意协作对于游戏开发的价值。设计团队以"打造员工热爱的工作空间"为目标,将定制DIY的设计理念贯穿始终,从空间布局到家具选择,每一处细节都彰显着对协作文化的深度理解。
开放协作的空间设计是本案的核心亮点。110个工位沿着开敞的落地窗布局,打破了传统办公空间的物理隔阂。有机形式的自由流动感贯穿整个空间,不仅消解了办公区域的边界感,更在视觉上引导员工主动交流与协作。这种设计巧妙呼应了Tripledot的协作基因,让创意在开放的氛围中自由碰撞。
自然光的最大化利用是本案的另一特色。通透的落地窗将明斯克的自然光线引入室内,不仅营造出明亮通透的空间感,更通过生物学效应提升员工的情绪与工作效率。休闲咖啡区被精心设置在视野最佳的角落,多样化的办公家具为员工提供了从专注工作到轻松社交的多元场景选择,完美适配游戏行业灵活多变的工作模式。
品牌诠释是本案最具辨识度的设计语言。Tripledot徽标的蓝色、橙色和绿色成为空间色彩的核心来源,通过色彩分区、饰面选择和软装搭配,将品牌基因深度植入空间肌理。更值得一提的是,徽标的有机形态被转化为定制DIY的设计元素,从墙面装饰到家具造型,随处可见的品牌符号不仅强化了空间的辨识度,更让员工在日常工作中时刻感受到品牌文化的浸润。
这个项目证明,游戏公司的办公环境设计不应仅仅追求视觉上的趣味性,更应成为企业文化的物质载体。通过定制DIY的设计策略,Tripledot成功将"开放协作"、"灵感创意"等核心价值观转化为可感知的空间体验,打造出一个既能吸引顶尖人才,又能激发创新活力的游戏工作室样板。
上一篇:
Microsoft微软生态型工作场所办公环境设计
返回上一级
下一篇:
德国AI人工智能创新园的办公空间环境设计
在线客服
电话联系
13809618579
微信同号