首页
关于文一
产品中心
办公椅
办公桌
会议
隔断
就餐
沙发
定制
午休床
多功能
金属柜
空间设计
设计优势
空间设计
空间理念
设计潮流
解决方案
IT高科
金融行业
消费品行业
传统制造
会所酒店
商务样板间
其它领域
服务与咨询
医疗与健康
环保与能源
家具资讯
联系文一
黄先生:13809618579 (微信同号)
选择语言
中文
英语
法语
西班牙语
俄语
阿拉伯语
IT高科
金融行业
消费品行业
传统制造
会所酒店
商务样板间
其它领域
服务与咨询
医疗与健康
环保与能源
乌克兰HELLO SCHOOL:用设计解锁儿童创造力
分享至社交平台
乌克兰HELLO SCHOOL:用设计解锁儿童创造力
地址:乌克兰 第聂伯罗
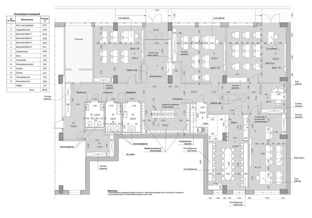
面积:400 平方米
关键词:家具,学生教室,教育/小学,时尚简约,高端精美,粉彩配色,环境导视系统设计,灵活多元,校园家具
在乌克兰第聂伯罗市,一所名为HELLO SCHOOL的私立小学以400平方米的空间,重新定义了现代教育建筑的可能性。作为儿童之家项目的延伸,它延续了前者对成长环境的深度思考,同时注入了更成熟的设计语言,打造出一个既符合儿童心理又具备高端质感的学习场域。
校园整体采用时尚简约的设计风格,以粉彩配色为基调,营造出柔和而充满活力的氛围。这种色彩选择不仅符合儿童审美,更能有效缓解学习压力,激发想象力。每一处空间都经过精心规划,从入口区到储物柜区,从游乐走廊到四间标准教室,处处体现着灵活多元的设计理念。每间教室可容纳12名学生,配备了现代化的校园家具,支持渐进式学习系统,让教学活动能够根据不同需求灵活调整。
空间布局的巧妙之处在于与家庭俱乐部的联动。体育、音乐和创造性活动区域共享走廊系统,既保证了学校的独立性,又实现了资源的高效利用。学校内部功能齐全,设有带小厨房的餐厅、三间浴室、技术室和储藏室,满足学生在校期间的全方位需求。所有工程通讯设备都经过精心配置,确保孩子们在安全舒适的环境中学习成长。
值得一提的是,整个校园的环境导视系统设计由知名的"&MO"工作室操刀,通过清晰的视觉指引,帮助孩子们快速熟悉校园环境,培养空间认知能力。装修材料的选择严格遵循高运行负荷和环保标准,为孩子们的健康成长提供了坚实保障。
HELLO SCHOOL的出现,不仅是教育建筑领域的一次创新尝试,更是对儿童成长环境的深度探索。它证明了优秀的空间设计能够成为教育的一部分,通过环境的力量激发儿童的创造力,为他们的未来发展奠定坚实基础。
上一篇:
麦当劳瑞士总部办公空间与家具配置
返回上一级
下一篇:
乐元素广州办公空间:游戏化设计如何重构办公体验
在线客服
电话联系
13809618579
微信同号