首页
关于文一
产品中心
办公椅
办公桌
会议
隔断
就餐
沙发
定制
午休床
多功能
金属柜
空间设计
设计优势
空间设计
空间理念
设计潮流
解决方案
IT高科
金融行业
汽车行业
传统制造
会所酒店
商务样板间
其它领域
服务与咨询
医疗与健康
环保与能源
家具资讯
联系文一
黄先生:13809618579 (微信同号)
选择语言
中文
英语
法语
西班牙语
俄语
阿拉伯语
IT高科
金融行业
汽车行业
传统制造
会所酒店
商务样板间
其它领域
服务与咨询
医疗与健康
环保与能源
看看办公家具还可以这样设计:黄浦江畔的8D奇幻办公新范式
分享至社交平台
看看办公家具还可以这样设计:黄浦江畔的8D奇幻办公新范式
主理机构:上海易成办公空间设计
设计团队:方磊(主创)、李煌/王嘉睿/赵冰洁(参与设计)
视觉团队:李文婷/潘妍思/陈盈
项目面积:1,600㎡
核心关键词:办公环境|办公家具|定制家具|金融/投资|中国上海|现代简约|黑白灰极简|多元文化|方与圆
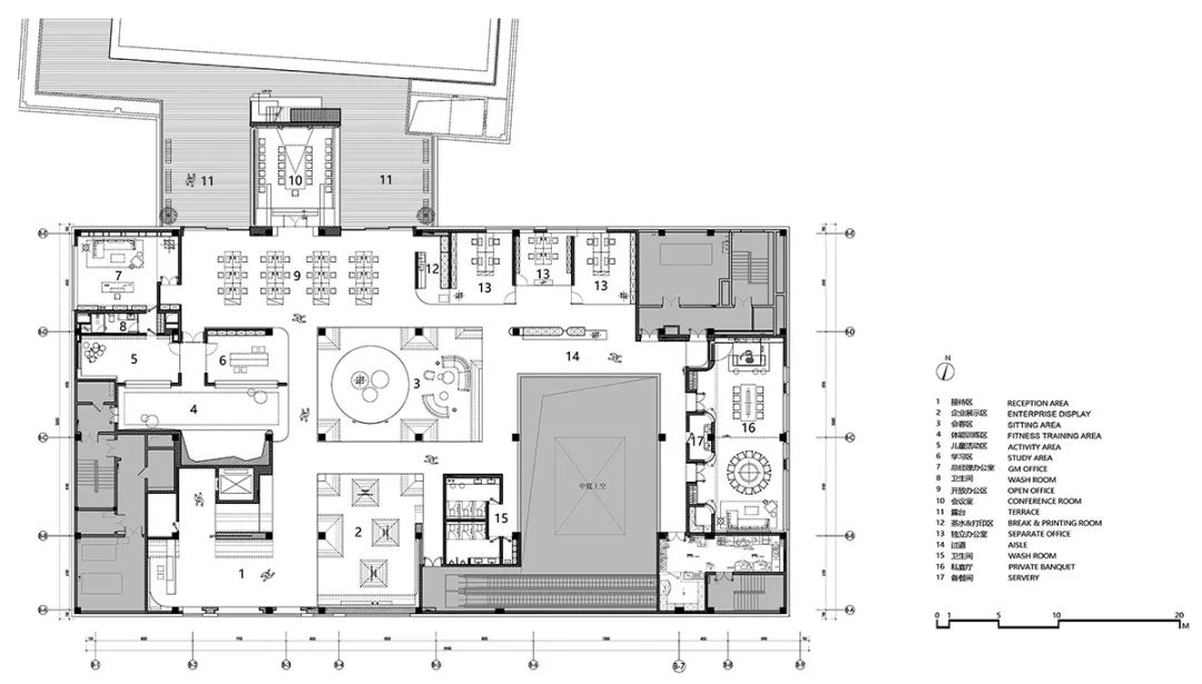
从传统格子间到开放协同办公,办公模式的迭代永不停歇。方磊领衔的壹舍团队在锦和越界世博园打造的上海易成新办公室,以现代简约语言重构空间,通过智能高效的办公家具系统与多元场景融合,实现了无边界平行办公场域的突破。
未来办公空间应兼具企业成长适配性与品牌独特性。设计师方磊表示:我们通过解构企业LOGO的几何基因,将方圆哲学注入定制家具与空间规划中,以艺术化场景叠加功能需求,为严谨的金融办公环境注入灵动趣味。
01 空间叙事:镜面弧线开启多维对话
入口处采用多重镜面天花与立面设计,虚实交错间形成深邃的视觉引力。定制弧形窗洞贯穿空间,既呼应建筑玻璃幕墙特性,又以流畅曲线消解金融行业的冰冷感。深浅材质的碰撞与造型穿插,预示着一场关于办公家具与空间美学的探索。
02 展示中枢:虫洞概念下的定制家具艺术
内嵌式BOX展示区以虫洞为灵感,通过有机形态的定制家具装置实现空间延展。核心艺术装置采用方圆融合设计,透明材质消融边界,兼具企业展示与功能枢纽双重属性。相邻会客区以洄游动线串联,镜面不锈钢柱体改造为收纳系统,体现定制家具的利落美学。
03 办公场域:家具系统构建高效秩序
开放办公区通过落地门窗实现内外渗透,深色格栅顶面与地面形成视觉延伸。下沉式会议室利用原始建筑结构,铝板包裹的立柱延续圆弧细节,办公家具系统与陆家嘴城市景观形成对话。总经理办公室以定制家具的洗练线条,演绎简约本质下的情绪张力。
04 融合体验:家具定制赋能多元场景
私宴厅轨道移门系统实现空间灵活转换,铁板烧区金属网格背景墙与圆弧门扇刚柔并济。壁布浮雕纹理与黄浦江景致交织,定制家具在此成为新旧文化对话的媒介。
05 活力模块:儿童友好型家具设计
文娱活动区配备主题定制家具:音乐室太空舱造型融入黑武士元素,学习区发光灯膜顶面打破传统韵律,攀岩墙与体能训练区则展现办公环境的人文关怀。
设计哲学:通过办公家具的定制化设计与空间场景的有机融合,在黑白灰极简基调中植入多元文化基因,最终实现高效办公与人性体验的完美平衡。
上一篇:
NatWest集团伦敦总部:以办公家具与定制化设计重塑未来办公环境
返回上一级
下一篇:
Prisjakt克拉科夫总部办公家具环境设计的创新实践
在线客服
电话联系
13809618579
微信同号